Ensemble, préservons le patrimoine religieux

91_fiche projet Montgeron_3

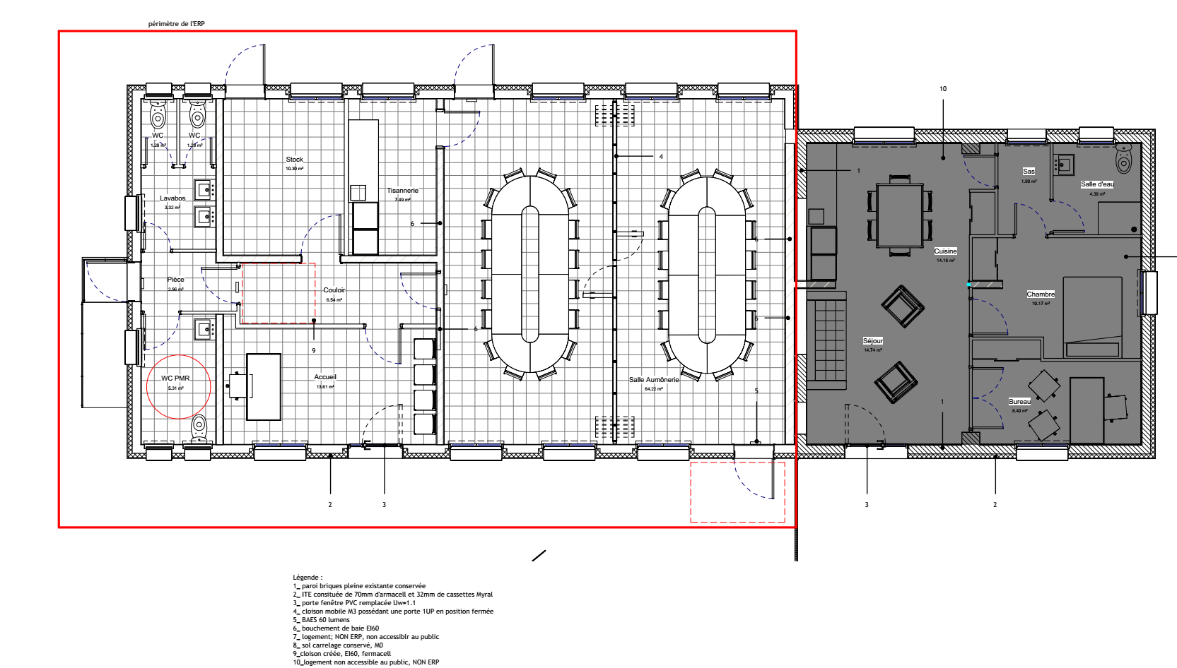
Plan de l’ERP et du logement futurs

Seul votre don nous permet d’agir

Faire un don